Trước khi bắt đầu xây dựng một công trình tuyệt vời, cần có bản phương án thiết kế và phối cảnh phác họa nên công trình đó. Đây là bước quan trọng giúp chủ đầu tư và đội ngũ thi công hình dung rõ ràng về kiến trúc, bố trí không gian và sự kết hợp giữa các yếu tố thẩm mỹ.
Đối với dự án xây dựng khách sạn tại Phan Thiết, công ty Khải Minh không chỉ chú trọng vào vẻ đẹp sang trọng mà còn đảm bảo tối ưu công năng sử dụng, mang lại trải nghiệm nghỉ dưỡng tuyệt vời cho du khách. Phối cảnh chi tiết giúp khách hàng có cái nhìn toàn diện về mọi khía cạnh của dự án, từ thiết kế ngoại thất cho đến sự hài hòa với môi trường tự nhiên xung quanh. Sau đây, cùng Khải Minh JSC tìm hiểu kỹ hơn về dự án xây dựng này.
1. Tổng quan dự án
Trước tiên, cùng xem qua những thông tin về dự án để hiểu rõ hơn về diện tích xây dựng cũng như mức đầu tư mà chủ đầu tư mong muốn.
Thông tin dự án:
- Chủ Đầu Tư: Anh Văn
- Dự án: WIND HOTEL (Khách sạn - Phòng cho thuê)
- Quy mô: 1 Trệt 4 lầu, sân thượng, mái, diện tích 484m2.
- Tổng số phòng: 60 phòng
- Địa điểm xây dựng: Khu phố 1, Phường Hàm Tiên, TP. Phan Thiết.
- Đơn Vị Thiết kế và Thi công: Công Ty CP TVGS Thiết Kế Xây Dựng Khải Minh
- Tổng kinh phí: 25 tỷ đồng
Chủ đầu tư của dự án này có dự định xây khách sạn cho thuê kết hợp với căn hộ cho thuê lâu dài. Kết hợp cùng đội ngũ Kiến Trúc Sư và Kỹ Sư đầy kinh kinh nghiệm của Xây Dựng Khải Minh, chúng tôi đã đưa ra phương án kiến trúc và phối cảnh phù hợp với mong muốn của chủ đầu tư.
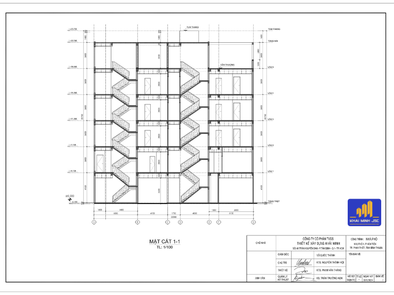
2. Phương án kiến trúc Dự án Wind Hotel - Phan Thiết
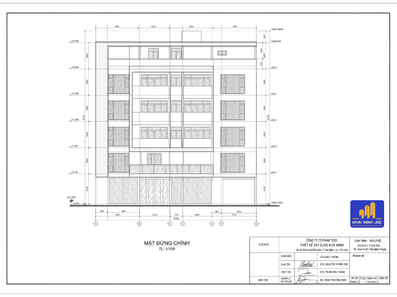
Dự án Khách sạn - Phòng cho thuê tại Phan Thiết với kiến trúc gồm 1 Trệt, 4 Lầu và Sân thượng. Dự án được thiết kế với mục tiêu kết hợp hài hòa giữa hai mô hình kinh doanh hiện đại: cho thuê phòng khách sạn theo giờ và phòng căn hộ cho thuê theo tháng, nhằm đáp ứng nhu cầu đa dạng của du khách.
Sau quá trình thảo luận và nỗ lực làm việc không ngừng, Xây Dựng Khải Minh đã đưa ra phương án thiết kế tối ưu cho Wind Hotel như sau:
-
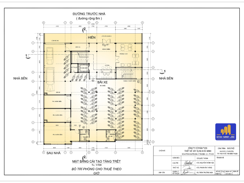
Tầng Trệt: Bao gồm Khu vực đón khách, Hầm xe và Phòng Nhân viên.

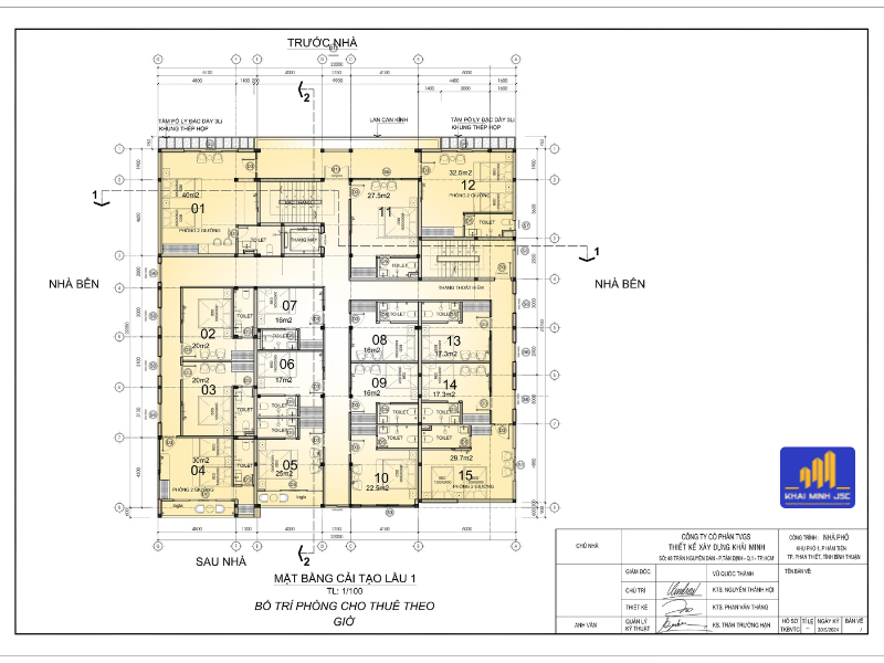
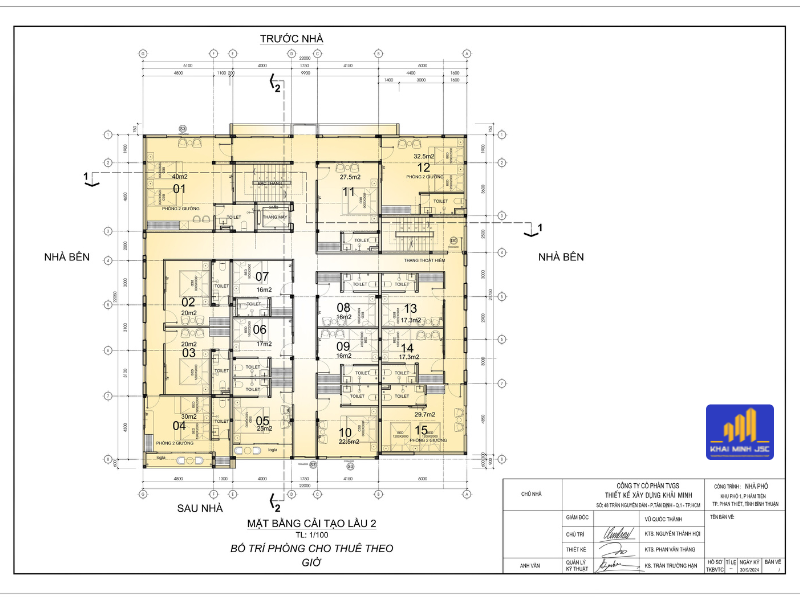
- Lầu 1,2: Bao gồm các phòng khách sạn bố trí dành cho khách thuê theo giờ


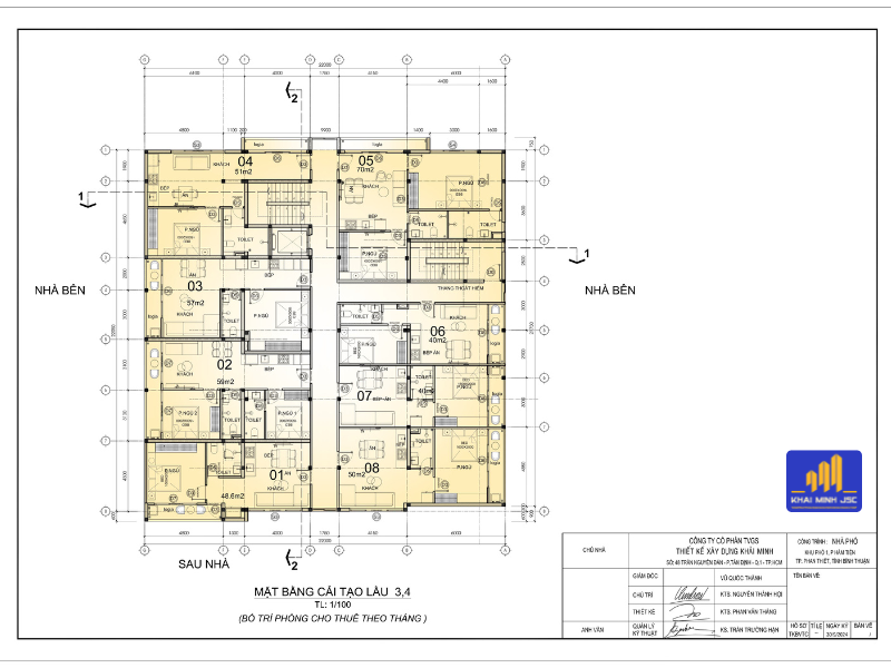
- Lầu 3,4: Bao gồm các phòng khách sạn bố trí dành cho khách thuê theo tháng

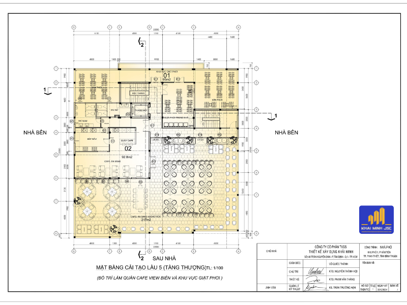
- Lầu 5 (Sân thượng): Bố trí quán Cà phê view biển và Khu vực giặt phơi


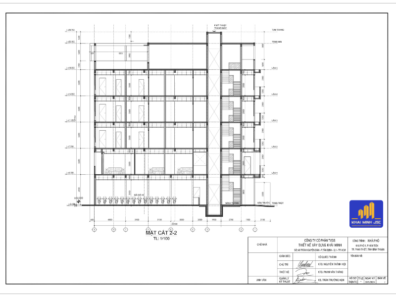
- Mặt cắt dự án Khách sạn - Phòng cho thuê



3. Phối cảnh Dự án Wind Hotel - Phan Thiết
Sau khi thống nhất với chủ đầu tư về phương án kiến trúc, đội ngũ Khải Minh JSC đã nhanh chóng triển khai quá trình phối cảnh nhằm mang đến cái nhìn trực quan và chi tiết về toàn bộ công trình. Mỗi góc nhìn, từ ngoại thất đến nội thất, đều được chăm chút tỉ mỉ, giúp chủ đầu tư hình dung rõ ràng hơn về sự sang trọng, hiện đại của khách sạn.
Cùng chúng tôi xem qua phối cảnh của Wind Hotel:
-
Phối cảnh bên ngoài

- Phối cảnh tầng Trệt


- Phối cảnh Phòng khách sạn 1 Giường ngủ



-
Phối cảnh Phòng khách sạn 2 Giường ngủ



-
Phối cảnh Căn hộ cho thuê 1 Phòng ngủ




- Phối cảnh Căn hộ cho thuê 2 Phòng ngủ




- Phối cảnh Tầng thượng

4. Đơn vị xây dựng uy tín Khải Minh JSC
Với kinh nghiệm dày dặn trong lĩnh vực thiết kế và thi công các dự án quy mô lớn, Khải Minh JSC luôn cam kết mang đến những công trình chất lượng, đáp ứng mọi yêu cầu về thẩm mỹ, công năng và sự bền vững. Đội ngũ chuyên gia giàu kinh nghiệm của chúng tôi luôn đặt lợi ích của khách hàng lên hàng đầu, từ việc tư vấn phương án thiết kế phù hợp đến việc triển khai thi công một cách tỉ mỉ và chuyên nghiệp.
Dự án Wind Hotel tại Phan Thiết là minh chứng cho sự nỗ lực không ngừng của Khải Minh trong việc tạo ra những công trình đẳng cấp, mang lại giá trị lâu dài cho chủ đầu tư. Hãy tin tưởng lựa chọn Xây Dựng Khải Minh, đơn vị xây dựng uy tín, để hiện thực hóa các ý tưởng kiến trúc của bạn.

Đến với Xây Dựng Khải Minh, bạn sẽ nhận được rất nhiều ưu đãi:
- Miễn phí 100% tư vấn, báo giá, khảo sát hiện trạng
- Miễn phí 100% chi phí thiết kế : phối cảnh 3D, thiết kế kiến trúc, kết cấu điện, nước và Miễn phí 100% xin phép giấy phép xây dựng khi ký hợp đồng trọn gói chìa khóa trao tay.
- Tư vấn xin giấy phép xây dựng
Ngoài ra xây dựng Khải Minh luôn có những chương trình ưu đãi giá xây dựng hoặc đăng ký giữ xây dựng giúp Quý Khách hàng yên tâm trong khi giá cả vật tư sắt thép, gạch, đá luôn tăng theo mỗi ngày.
Để được hỗ trợ nhanh nhất, vui lòng gọi nhanh hotline: 0901 999 998
----------------------------------------
CÔNG TY CỔ PHẦN TVGS THIẾT KẾ XÂY DỰNG KHẢI MINH
- Website: https://xaydungkhaiminh.vn/
- Fanpage: https://www.facebook.com/xaydungkhaiminh
- Tiktok: https://www.tiktok.com/@xd_khaiminh.jsc
- Youtube: https://www.youtube.com/@xaydungkhaiminh2157
- HOTLINE: 0901 999 998
- Email: hungthinhkhaiminhgroup@gmail.com

