Hồ sơ yêu cầu xin giấy phép xây dựng nhà cao tầng TPHCM bao gồm nhiều tài liệu, trong đó bản vẽ thiết kế xin giấy phép là một phần quan trọng. Hiểu rõ về những yêu cầu đối với bản vẽ thiết kế này không chỉ giúp bạn chuẩn bị tốt hơn mà còn đảm bảo quá trình xây dựng diễn ra suôn sẻ, tránh những rủi ro pháp lý không đáng có. Vậy cần lưu ý gì khi thiết kế để đáp ứng yêu cầu xin phép xây dựng nhà cao tầng TPHCM? Hãy cùng Xây dựng Khải Minh giải đáp ngay trong bài viết sau.
Tổng quan về bản vẽ thiết kế xin phép xây dựng nhà ở cao tầng TPHCM
Bản vẽ thiết kế xin phép xây dựng nhà ở cao tầng là một loại hình bản vẽ kỹ thuật thể hiện thông tin vị trí xây dựng công trình cùng một số thông tin cơ bản về diện tích, kết cấu, chiều cao, số tầng,… của công trình xây dựng mà bạn dự định thực hiện. Đây là cơ sở để UBND quận/huyện xem xét và quyết định có đáp ứng yêu cầu xin giấy phép xây dựng nhà cao tầng TPHCM hay không.

Bản vẽ xin phép xây dựng là tài liệu kỹ thuật cần thiết khi xin cấp phép xây dựng
Có một số lý do quan trọng khiến bản vẽ xin cấp phép xây dựng trở thành yếu tố bắt buộc:
- Đảm bảo tuân thủ quy hoạch: Bản vẽ giúp kiểm tra xem công trình có tuân thủ các quy hoạch và tiêu chuẩn về an toàn, môi trường và kiến trúc đô thị hay không.
- Hạn chế rủi ro pháp lý: Bản vẽ xin phép xây dựng là tài liệu kỹ thuật cần thiết khi chủ nhà hoặc nhà thầu bắt đầu thủ tục xin cấp phép nhà cao tầng. Việc không có giấy phép xây dựng hoặc vi phạm quy định xây dựng có thể dẫn đến các vấn đề pháp lý, bao gồm việc bị phạt hoặc buộc phải tháo dỡ công trình.
- Quản lý và kiểm soát chất lượng: Bản vẽ chi tiết giúp đảm bảo rằng công trình sẽ được xây dựng đúng theo thiết kế, đảm bảo chất lượng và an toàn cho người sử dụng.
Các yếu tố cần lưu ý khi thiết kế để đáp ứng yêu cầu xin phép xây dựng nhà cao tầng TPHCM
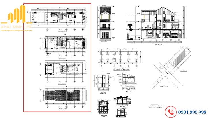
Hồ sơ thiết kế xin cấp phép xây dựng nhà ở bao gồm nhiều loại bản vẽ, mỗi loại phục vụ cho một mục đích cụ thể để đáp ứng yêu cầu xin giấy phép xây dựng nhà cao tầng TPHCM. Một số lỗi phổ biến khi làm bản vẽ thiết kế xin phép xây dựng bao gồm:
- Thiếu thông tin, sai sót về kích thước các phòng,
- Lỗi về tính toán kết cấu, hệ thống kỹ thuật,
- Không phù hợp quy hoạch sử dụng đất tại địa phương,...

Hồ sơ thiết kế xin cấp phép xây dựng nhà ở bao gồm nhiều loại bản vẽ
Để quá trình lập bản vẽ xây dựng được suôn sẻ và hạn chế các lỗi thường gặp, gia chủ cần lưu ý:
Xác định đúng vị trí thửa đất
Chủ đầu tư cần xác định đúng vị trí thửa đất hay còn gọi là sơ đồ vị trí khu đất, tọa độ vị trí thửa đất cũng như liền kề những thửa đất xung quanh. Trong mặt bằng định vị thửa đất xây dựng cần có các thông tin về: số thửa, tờ bản đồ, địa chỉ xây dựng, diện tích xây dựng, mật độ xây dựng, hướng đất.
Các thông tin này phải đúng với thông tin trong Giấy chứng nhận quyền sử dụng đất. Trường hợp sổ cũ không có tọa độ thì gia chủ cần làm thêm bản đồ hiện trạng cho khu đất của mình. Bản đồ hiện trạng có thể xin cấp tại UBND xã/phường hoặc Phòng Tài nguyên Môi trường quận, huyện nơi có đất.
Nắm được sơ đồ bố trí móng
Sơ đồ bố trí móng thể hiện các chi tiết bố trí móng nhà, bể nước ngầm, bể phốt, mặt cắt móng,… Thực hiện khoan địa chất nếu cần để xác định loại móng phù hợp khi xin phép và thi công. Nếu không chắc chắn, hãy nhờ kiến trúc sư hoặc kỹ sư tư vấn.
Tìm hiểu bản vẽ kiến trúc
Bản vẽ kiến trúc trong hồ sơ xin giấy phép xây dựng cho nhà cao tầng tại HCM bao gồm mặt bằng kiến trúc các tầng, mặt đứng toàn công trình, mặt cắt dọc công trình.
- Mặt bằng kiến trúc các tầng từ tầng một tới các tầng lầu, tầng lửng, mái: Các bản vẽ kiến trúc khi xin giấy phép xây dựng nhà 5 tầng, 6 tầng, 7 tầng phải thể hiện đầy đủ kích thước, mục đích giúp người xem có thể hình dung sơ khởi về toàn bộ ngôi nhà, cách bố trí công năng, thiết kế theo góc nhìn từ trên cao xuống.
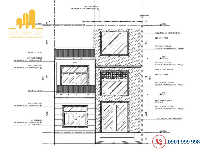
- Bản vẽ mặt đứng: Mặt đứng ngôi nhà là hình chiếu vuông góc thể hiện hình dáng bên ngoài của công trình, bao gồm thông tin về chiều cao tầng ngôi nhà, hình dáng và kích thước ngôi nhà kể cả phần mái.
- Bản vẽ mặt cắt: Mặt cắt nhà thể hiện phần nhìn thấy khi cắt không gian ngôi nhà theo chiều thẳng đứng, nhằm mô tả kiến trúc bên trong của công trình rõ nét hơn.

Bản vẽ mặt đứng công trình xây dựng
Trình bày chi tiết bản vẽ hệ thống điện, cấp thoát nước
Chi tiết bản vẽ hệ thống điện, cấp thoát nước bao gồm mặt bằng cấp điện, mặt bằng cấp nước, mặt bằng thoát nước. Bản vẽ hệ thống điện và cấp thoát nước là một phần quan trọng không thể thiếu để đáp ứng yêu cầu xin giấy phép xây dựng nhà cao tầng TPHCM. Đây là tài liệu thể hiện chi tiết cách bố trí và lắp đặt các hệ thống điện, nước sạch cũng như nước thải trong công trình. Trong bản vẽ điện, bạn sẽ thấy các thông tin về vị trí lắp đặt ổ cắm, công tắc, đèn chiếu sáng, đường dây điện, bảng điện, và cả vị trí đặt máy phát điện.
Trong khi đó, bản vẽ cấp thoát nước sẽ trình bày sơ đồ đường ống dẫn nước sạch, thoát nước thải, vị trí các thiết bị vệ sinh, bể chứa nước, và hệ thống xử lý nước thải. Những bản vẽ này cần được thực hiện cẩn thận và chính xác, tuân thủ đầy đủ các quy định và tiêu chuẩn hiện hành để đảm bảo an toàn và hiệu quả cho công trình. Đồng thời, chúng đóng vai trò quan trọng trong việc giúp cơ quan chức năng phê duyệt hồ sơ, tạo điều kiện thuận lợi cho quá trình thi công, dễ dàng kiểm soát và quản lý, từ đó đảm bảo chất lượng công trình sau khi hoàn thiện.
Cung cấp đầy đủ khung tên bản vẽ xin phép xây dựng
Phần khung tên sẽ cần hiển thị những nội dung sau:
- Tên đơn vị có chức năng xin phép: Phải thể hiện tên công ty, logo, địa chỉ, số điện thoại, chữ ký giám đốc, con dấu hợp lệ.
- Kiến trúc sư thiết kế: Ký và ghi rõ họ tên của kiến trúc sư phụ trách các hạng mục kiến trúc, kết cấu, điện nước.
- Phần chủ nhà: Ký và ghi rõ họ tên của chủ nhà, đúng theo tên trên sổ đỏ. Trường hợp cả hai vợ chồng cùng đứng tên trên sổ đỏ thì phải có chữ ký của cả 2 vợ chồng.
- Tên bản vẽ và tỉ lệ bản vẽ.
- Phần đóng dấu: Dành 1 khoảng trống để cơ quan nhà nước có thẩm quyền phê duyệt, ký tên và đóng dấu.

Chủ đầu tư cần kiểm tra lại tất cả các thông số, kích thước trước khi hoàn thiện bản vẽ
Đặc biệt, chủ đầu tư cần kiểm tra lại tất cả các thông số, kích thước trước khi hoàn thiện bản vẽ. Nếu phát hiện lỗi, cần sửa chữa ngay để tránh ảnh hưởng đến quá trình xin phép.
Quy định pháp lý về bản vẽ thiết kế xin phép xây dựng nhà ở cao tầng TPHCM
Tại Việt Nam, quy trình yêu cầu xin giấy phép xây dựng nhà cao tầng TPHCM và yêu cầu về bản vẽ xây dựng được quy định rõ ràng trong Luật Xây dựng và các văn bản hướng dẫn kèm theo. Những quy định này nhằm đảm bảo công trình xây dựng đáp ứng các tiêu chuẩn về an toàn, kỹ thuật và mỹ quan, đồng thời phù hợp với quy hoạch đô thị.
Một số yêu cầu đối với bản vẽ xin phép xây dựng bao gồm:
- Mật độ xây dựng: Bản vẽ xin phép xây dựng phải thể hiện diện tích của miếng đất và diện tích phần bạn muốn xây dựng. Mật độ xây dựng phải tuân theo quy định do Nhà nước ban hành.
- Số tầng: Số tầng tối đa của công trình phụ thuộc vào lộ giới đường, vị trí của công trình (trung tâm đô thị, ngoại ô) và quy định của địa phương.
- Chiều cao tầng: Chiều cao tầng phụ thuộc vào lộ giới đường, bao gồm cả chiều cao tối đa từ nền vỉa hè đến sàn lầu một và các tầng khác.
- Khổ giấy bản vẽ: Không có quy định cụ thể về khổ giấy, miễn là bản vẽ thể hiện toàn bộ theo quy định của Nhà nước.
- Quy định về ban công, cửa sổ, lỗ thông hơi: Bản vẽ phải thể hiện rõ các quy định về việc mở ban công, cửa sổ và lỗ thông hơi hướng ra nhà kế cận và các khu nhà liền kề.

Nắm được quy định pháp lý về bản vẽ thiết kế xin phép xây dựng nhà ở cao tầng TPHCM
Bạn muốn xây nhà mà không lo lắng? Hãy đến với Xây dựng Khải Minh - đơn vị tư vấn thiết kế và xây nhà trọn gói đáp ứng yêu cầu xin giấy phép xây dựng nhà cao tầng TPHCM của nhiều gia chủ hiện nay. Với đội ngũ kiến trúc sư và kỹ sư giàu kinh nghiệm, chúng tôi cam kết tạo nên những bản thiết kế không chỉ đẹp mắt mà còn tối ưu hóa công năng sử dụng, đảm bảo tuân thủ các quy định pháp luật hiện hành. Liên hệ ngay để được tư vấn miễn phí!
----------------------------------------
CÔNG TY CỔ PHẦN TVGS THIẾT KẾ XÂY DỰNG KHẢI MINH
- Website: https://xaydungkhaiminh.vn/
- Fanpage: https://www.facebook.com/xaydungkhaiminh
- Tiktok: https://www.tiktok.com/@xd_khaiminh.jsc
- Youtube: https://www.youtube.com/@xaydungkhaiminh2157
- HOTLINE: 0901 999 998
- Email: hungthinhkhaiminhgroup@gmail.com


