
Bản vẽ xin phép xây dựng là một phần quan trọng trong quá trình xây dựng một ngôi nhà.
Vì vậy nếu bạn cần tìm hiểu về:
- Bản vẽ xin phép xây dựng nhà phố là gì?
- Bản vẽ thiết kế nhà ở bao gồm những gì?
- Hay muốn xem các mẫu bản vẽ xin cấp giấy phép xây dựng?
Hãy cùng Khải Minh tìm hiểu thông qua bài viết dưới đây. Chúng tôi sẽ giải đoán chính xác và chi tiết nhất.
Trong trường hợp các bạn vẫn chưa nắm rõ quy định về giấy phép xây dựng là gì? Hãy nhấp vào text màu đỏ kế bên để tham khảo chi tiết nhé!
|
Hồ sơ, thủ tục xin giấy phép xây dựng CHI TIẾT 2023 |
Thủ tục xin giấy phép xây dựng nhà cấp 4 CHI TIẾT 2023 |
|---|---|
| Lệ phí xin giấy phép xây dựng nhà ở 2023 | |
| 10 mẫu giấy phép xây dựng nhà ở CHI TIẾT - CHUẨN 2023 | |
| Bản vẽ xin phép xây dựng bao gồm những thông tin gì? |
Đơn xin cấp phép xây dựng nhà ở CHUẨN 2023 |
|
Giấy phép xây dựng tạm thời (có thời hạn) là gì? Có được hoàn công không? |
| Làm nhà tiền chế có phải xin phép không? | |
| Nhà dưới 30m2 có được cấp phép xây dựng không? | |
|
Nhà ở riêng lẻ là gì? Cần điều kiện gì để được cấp phép xây dựng? |
Công trình theo tuyến là gì? Điều kiện để cấp phép xây dựng? |
1. Căn cứ pháp lý

Theo Luật Xây dựng năm 2014, bản vẽ xin phép xây dựng là một trong những hồ sơ cần thiết để được cấp phép xây dựng.
Nếu không có bản vẽ xin phép xây dựng, công trình sẽ không được phép xây dựng.
2. Bản vẽ xin cấp phép xây dựng và bản vẽ thiết kế nhà phân biệt như thế nào?

2.1 Bản vẽ xin giấy phép xây dựng nhà phố là gì?

Bản vẽ xin giấy phép xây dựng nhà phố là tài liệu được chuẩn bị và nộp đến cơ quan chức năng, như:
- Sở xây dựng
- Hoặc cục quản lý nhà ở địa phương
Để xin cấp phép xây dựng một căn nhà phố.
Bản vẽ xin phép xây dựng nhà phố bao gồm các thông tin về:
- Mặt bằng
- Mặt cắt
- Mặt đứng
- Khung tên công trình
- Bản đồ họa độ vị trí
- Và các thông tin khác liên quan đến công trình
2.2 Bản vẽ thiết kế nhà

2.2.1 Bản vẽ thiết kế nhà là gì?

Bản vẽ thiết kế nhà là một bộ hồ sơ hoàn chỉnh về tất cả các phần của căn nhà.
Bản vẽ cung cấp cho các chủ đầu tư thông tin về:
- Kích thước
- Hình dáng
- Vị trí của các phần trong ngôi nhà
Giúp cho việc xây dựng được diễn ra thuận lợi và an toàn.
2.2.2 Bản vẽ thiết kế nhà ở bao gồm những gì?

|
Bản vẽ thiết kế nhà ở bao gồm |
Chi tiết |
|
Hồ sơ phần kiến trúc |
Hồ sơ kiến trúc là tập hợp:
Nó bao gồm:
Của dự án kiến trúc. |
|
Hồ sơ phần kết cấu |
Hồ sơ kết cấu là các bản vẽ kỹ thuật được tạo ra để mô tả các yếu tố kết cấu của công trình, bao gồm:
Các bản vẽ kết cấu thường được thể hiện dưới dạng:
|
|
Hồ sơ phần điện |
Hồ sơ phần điện phải thể hiện được:
|
|
Hồ sơ cấp thoát nước |
Hồ sơ cấp thoát nước gồm có:
|
2.2.3 Tóm lược thành phần của một bộ hồ sơ bản vẽ thiết kế nhà ở hoàn chỉnh

Một bộ hồ sơ bản vẽ thiết kế nhà ở hoàn chỉnh sẽ bao gồm các thành phần sau:
- Bản vẽ kiến trúc
- Bản vẽ kết cấu
- Bản vẽ điện nước
- Bản vẽ mặt ngoài của ngôi nhà
- Bản vẽ nội thất của ngôi nhà (nếu có)
3. Bản vẽ xin phép xây dựng nhà phố bao gồm những gì?

3.1 Bản vẽ xin phép xây dựng nhà phố

Bản vẽ xin phép xây dựng nhà phố là một tài liệu quan trọng để chủ đầu tư có thể được cấp phép xây dựng công trình.
Bản vẽ này sẽ mô tả chi tiết các thông tin liên quan đến công trình, bao gồm:
- Kích thước
- Hình dạng
- Cấu trúc
- Và các yêu cầu khác liên quan đến công trình
3.2 Lập bản vẽ xin giấy phép xây dựng nhà phố

Để lập bản vẽ xin giấy phép xây dựng nhà phố, chủ đầu tư cần có những thông tin quan trọng sau đây:
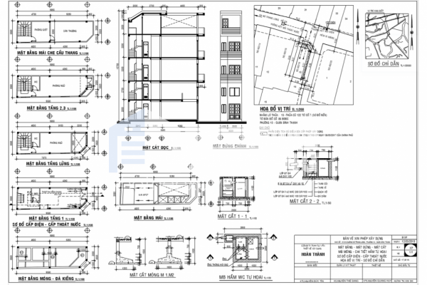
3.2.1 Bản vẽ mặt bằng

Mặt bằng được chia ra làm 2 phần đó là:
- Mặt bằng tổng thể
- Và mặt bằng sơ bộ
Của công trình mà bạn đang muốn thi công xây dựng.
Mặt bằng tổng thể: Bản vẽ này cần thể hiện tổng quan về khu đất và vị trí của nhà phố trong khuôn viên đó.
Bao gồm các thông tin về:
- Giao thông xung quanh
- Các công trình khác
- Và vị trí các công trình phụ như
Bản vẽ mặt bằng tổng thể cũng cần ghi rõ:
- Kích thước
- Và các yếu tố quan trọng khác của khu đất

Mặt bằng sơ bộ: Bản vẽ này là phiên bản chi tiết hơn của mặt bằng tổng thể
Bao gồm các thông tin về:
- Kích thước chính xác của nhà phố
- Các công trình chính
- Và các công trình phụ
Bản vẽ mặt bằng sơ bộ sẽ hiển thị mối quan hệ giữa:
- Các phòng
- Và không gian trong nhà phố
- Cũng như sự kết hợp giữa các yếu tố nội thất và kiến trúc khác
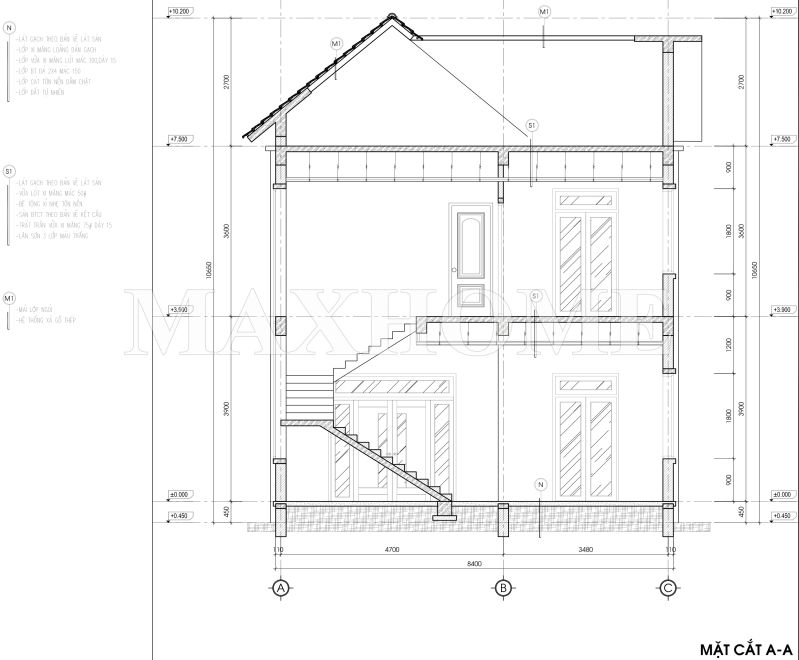
3.2.2 Bản vẽ mặt cắt

Bản vẽ mặt cắt sẽ hiển thị:
- Cấu trúc
- Và hình dạng
Của nhà phố từ phía ngang.
Bản vẽ mặt cắt cho phép nhìn thấy chi tiết về:
- Các tầng của nhà phố
- Vị trí của cửa và cửa sổ
- Hệ thống nội thất
- Và các yếu tố xây dựng khác
Bản vẽ mặt cắt giúp cơ quan quản lý xây dựng có cái nhìn rõ ràng về:
- Cấu trúc
- Và thiết kế tổng thể của nhà phố
3.2.3 Bản vẽ mặt đứng

Bản vẽ mặt đứng cho phép chúng ta nhìn thấy các chi tiết về:
- Chiều cao của tòa nhà
- Vị trí của cửa
- Vị trí của cửa sổ
- Ban công
- Và các yếu tố kiến trúc khác
Trong việc lập bản vẽ mặt đứng, cần chú trọng đến việc truyền tải thông tin về:
- Thẩm mỹ
- Tỷ lệ
- Và sự tỉ mỉ trong từng chi tiết
3.2.4 Khung tên bản vẽ xin phép xây dựng

Khung tên bản vẽ xin phép xây dựng cần thể hiện rõ các phần quan trọng như:
- Tên chủ đầu tư
- Tên kiến trúc sư
- Hoặc tên nhóm thiết kế
- Ngày tháng
- Và các thông tin khác liên quan
Khung tên bảng vẽ xin phép xây dựng cần được đặt ở một vị trí:
- Dễ nhìn
- Và dễ đọc trên bản vẽ
Để dễ dàng nhận biết và xác nhận thông tin cần thiết.
3.2.5 Bản đồ họa độ vị trí

Bản đồ họa độ vị trí là bản vẽ chi tiết về vị trí xây dựng của công trình.
Bao gồm các yếu tố xung quanh như:
- Đường giao thông
- Dòng sông
- Công trình công cộng
- Và các vị trí gần đó
Bản đồ họa độ vị trí giúp cơ quan quản lý xây dựng có cái nhìn toàn cảnh về:
- Vị trí dự án
- Và môi trường xung quanh
3.3 Mẫu bản vẽ xin cấp giấy phép xây dựng

Nếu bạn chưa hiểu về lập bản vẽ xin giấy phép xây dựng nhà phố cần những gì?
Chúng tôi sẽ cung cấp thêm cho bạn những hình ảnh về các mẫu bản vẽ xin cấp giấy phép xây dựng:
3.4 Quy định về bản vẽ xin cấp phép xây dựng ở Quận

| Quy định về bản vẽ xin cấp giấy phép xây dựng ở Quận | Chi tiết |
| Mật độ xây dựng |
Theo quy định của Quận, mật độ xây dựng là một yếu tố quan trọng cần được xem xét trong bản vẽ xin cấp phép xây dựng. Mật độ xây dựng xác định tỷ lệ giữa:
Thể hiện sự tương quan giữa:
Bản vẽ cần cho thấy mật độ xây dựng:
|
| Quy mô xây dựng |
Quy mô xây dựng là một yếu tố quan trọng khác mà bản vẽ cần thể hiện. Quy mô xây dựng liên quan đến:
So với môi trường xung quanh. Bản vẽ cần cung cấp thông tin chi tiết về quy mô xây dựng như:
Để đảm bảo tuân thủ quy định của Quận. |
| Chiều cao tầng |
Quận có quy định về:
Cho các công trình xây dựng. Bản vẽ cần hiển thị chiều cao của từng tầng và đảm bảo rằng nó không vượt quá giới hạn quy định của Quận. |
| Quy định về việc mở ban công, cửa sổ và lổ thông hơi sang các khu nhà liền kề |
Bản vẽ cần chỉ ra vị trí và kích thước của:
Bản vẽ cũng cần thể hiện quy định về:
|
| Khổ giấy của bản vẽ xin phép xây dựng nhà | Không quy định về khổ giấy miễn là bản vẽ có thể thể hiện được toàn bộ theo quy định của nhà nước. |
4. Bản vẽ xin giấy phép xây dựng và những mục không thể thiếu mới nhất 2023

Tất cả các mục trong bản vẽ xin giấy phép xây dựng đều rất quan trọng và không thể thiếu khi chuẩn bị để nộp lên cơ quan có thẩm quyền
Các mục quan trọng không thể thiếu trong bản vẽ xin giấy phép xây dựng bao gồm:
- Bản vẽ mặt bằng
- Bản vẽ mặt cắt
- Bản vẽ mặt đứng
- Khung tên bản vẽ xin phép xây dựng
- Bản đồ tọa vị vị trí
Đặc biệt lưu ý chuẩn bị đầy đủ và kĩ càng tất cả các mục trên nhằm giúp:
- Tiết kiệm thời gian
- Công sức
- Và tiền bạc
5. Mẫu bản vẽ xin phép xây dựng được tổng hợp

Sau đây là một số mẫu:
- Bản vẽ xin phép xây dựng nhà phố 2 tầng
- Bản vẽ xin phép xây dựng nhà nhà cấp 4
Đã được công ty xây dựng Khải Minh đã tổng hợp.
Qua đó giúp bạn có thể tham khảo và tự tạo cho mình một bản vẽ xin phép xây dựng xây dựng nhà phố 2 tầng, nhà cấp 4


6. Dịch vụ tư vấn và thiết kế bản vẽ xin phép xây dựng tại Khải Minh

Công ty xây dựng Khải Minh cung cấp dịch vụ tư vấn và thiết kế bản vẽ xin phép xây dựng chuyên nghiệp và đáng tin cậy.
Chúng tôi có đội ngũ kiến trúc sư, kỹ sư và nhân viên kỹ thuật có:
- Kinh nghiệm
- Giàu kiến thức
- Và tay nghề cao
Trong lĩnh vực thiết kế và xây dựng.
Ngoài ra chúng tôi cam kết:
- Thiết kế bản vẽ giấy phép xây dựng chất lượng nhất
- Đưa đến mức phí ưu đãi nhất dành cho các khách hàng
- Luôn sẵn sàng hỗ trợ và giải đáp mọi thắc mắc của khách hàng
Hãy liên hệ ngay với chúng tôi để nhận được báo giá bản vẽ xin phép xây dựng tốt nhất.
7. Sau khi có giấy phép xây dựng thì có được chỉnh sửa bản vẽ thiết kế nhà hay không?

Khi đã có giấy phép xây dựng, việc có được chỉnh sửa bản vẽ thiết kế nhà hay không? Phụ thuộc vào:
- Các quy định pháp luật
- Và quyền lợi đã được cấp phép
Dưới đây là hai trường hợp có thể xảy ra:
Trường hợp 1: Xây dựng nhà vượt quá mức cho phép được ghi trong giấy phép xây dựng
Theo khoản 5 điều 13 Nghị định số 121/2013/NĐ-CP, cá nhân hoặc tổ chức sẽ bị xử phạt nếu xây nhà vượt quá kích thước bên trong bản vẽ xin phép xây dựng đã nộp lên cơ quan chức năng.
| Các trường hợp bị xử phạt khu xây nhà vượt quá mức cho phép được ghi trong giấy phép xây dựng | Mức đóng phạt |
| Xây dựng nhà ở riêng lẻ ở nông thôn hoặc xây dựng công trình khác không thuộc các trường hợp quy định tại Điểm b và Điểm c | 500.000 - 1.000.000 VND |
| Xây dựng nhà ở riêng lẻ ở đô thị | 10.000.000 - 20.000.000 VND |
| Xây dựng công trình thuộc trường hợp phải lập báo cáo kinh tế – kỹ thuật xây dựng công trình hoặc lập dự án đầu tư xây dựng công trình. | 30.000.000 - 50.000.000 VND |

Trường hợp 2: xây dựng nhà sai bản thiết kế ở bên trong và không ảnh hưởng đến an toàn công trình hoặc giảm số tầng thì sẽ không bị xử phạt
Theo điều 6. Về xử phạt hành vi xây dựng sai phép quy định tại Khoản 3, Khoản 5 Điều 13 Nghị định số 121/2013/NĐ-CP như sau:
Hành vi xây dựng sai phép quy định tại Khoản 3 và Khoản 5 của Điều 13 Nghị định số 121/2013/NĐ-CP có nghĩa là việc xây dựng không tuân thủ một trong các nội dung được quy định trong:
- Giấy phép xây dựng
- Và các bản vẽ thiết kế mà cơ quan cấp giấy phép xây dựng đã đóng dấu kèm theo
Tuy nhiên, việc xây dựng nhà ở riêng lẻ sẽ không được coi là hành vi xây dựng sai phép trong các trường hợp sau:
a) Thay đổi thiết kế bên trong công trình mà không ảnh hưởng đến:
- Phòng cháy chữa cháy
- Môi trường
- Công năng sử dụng
- Kết cấu chịu lực chính
- Hoặc kiến trúc mặt ngoài của công trình
b) Giảm số tầng so với giấy phép xây dựng ban đầu đối với khu vực chưa có quy hoạch chi tiết xây dựng tỷ lệ 1/500 hoặc thiết kế đô thị đã được phê duyệt.
8. Câu hỏi thường gặp về bản vẽ xin phép xây dựng nhà cấp 4

8.1 Bản vẽ mặt đứng công trình nhà cấp 4 sẽ thể hiện mặt nào của công trình?

Bản vẽ mặt đứng của công trình nhà cấp 4 sẽ thể hiện mặt đứng của công trình, tức là các bức tường và chi tiết kiến trúc của nhà cấp 4 từ phía ngoài.
Bản vẽ này sẽ cho thấy hình dạng tổng thể của công trình và các chi tiết về:
- Cửa
- Cửa sổ
- Mặt tiền
- Và các yếu tố kiến trúc khác
8.2 Phần khung tên công trình bản vẽ xây dựng nhà cấp 4 có cần phải nộp không?

Khi nộp bản vẽ xin phép xây dựng nhà cấp 4, phần khung tên công trình cũng cần được đính kèm.
Khung tên công trình bao gồm thông tin về:
- Tên chủ đầu tư
- Địa chỉ công trình
- Số giấy phép xây dựng
- Và các thông tin liên quan khác
Phần này giúp xác định rõ ràng công trình được đề xuất trong bản vẽ và tạo điểm tham chiếu khi xử lý thủ tục cấp phép.
8.3 Bản vẽ xin phép xây dựng nhà cấp 4 cần những phần nào?

Bản vẽ xin phép xây dựng nhà cấp 4 cần bao gồm các phần sau:
- Bản vẽ mặt bằng
- Bản vẽ mặt cắt
- Bản vẽ mặt đứng
- Khung tên công trình
- Bản đồ họa độ vị trí
9. Kết luận
Trên đây là tất cả thông tin về bản vẽ xin giấy phép xây dựng, các mẫu bản vẽ xin phép xây dựng mà Khải Minh muốn truyền tải đến cho bạn.
Nếu bạn còn bất kỳ thắc mắc nào về bản vẽ xin phép xây dựng. Hãy liên hệ ngay cho Khải Minh để được giải đáp miễn phí HOTLINE: 0901 999 998.

